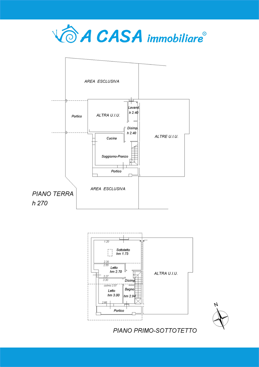
Planimetria
Descrizione
Sei alla ricerca di una soluzione SEMINDIPENDENTE?
Vuoi anche tu avere il tuo giardino privato?
FERMATI!! Abbiamo quello che fa per te.
A CASA Immobiliare di Felino, propone in vendita esclusiva, a Montecchio Emilia, graziosa villa bifamiliare con giardino e ingresso indipendente.
La soluzione si sviluppa su due livelli ed’è composta da ingresso, in ampio e luminoso soggiorno arricchito da un camino, cucina ad angolo cottura e un comodo bagno a piano.
Tramite scala interna si giunge al piano superiore dove troviamo, un confortevole camera matrimoniale con acesso diretto al godibile terrazzo, una camera singola, un’ampia mansarda e un bagno con box doccia e vasca.
L’immobile è completato da garage e posto auto di proprietà.
Se anche tu stai pensando di comprare casa,
CHIAMA SUBITO e non lasciarti sfuggire questa OCCASIONE.
Per informazioni e visite contattare il nostro ufficio di Felino al numero 0521.684828 oppure il 342.73.31.833






















































